
石家庄多城中村
要动了!
宋村城中村改造首开区地块

✅项目概况:项目位于石家庄市裕华区仓裕路南,谈固大街东,仓丰路北,颂扬大街西。
✅建设规模:本项目建筑面积180568.18㎡,主要包括12栋住宅、2栋配套(3-S2#为变配电室)、幼儿园、地下室、地下车库、设备用房、人防及其他配套附属设施等。高压电缆的电压等级为10KV,低压电缆的电压等级为0.4KV。 招标最高投标限价 3665.56012 万元
前太保城中村改造项日

✅项目概况:项目位于石家庄市赵陵北路以南,友谊大街以西。
✅项目的主要建设内容:

✅项目概况:本项目位于石家庄市尹泰路北、汇宁街东。
✅建设规模:
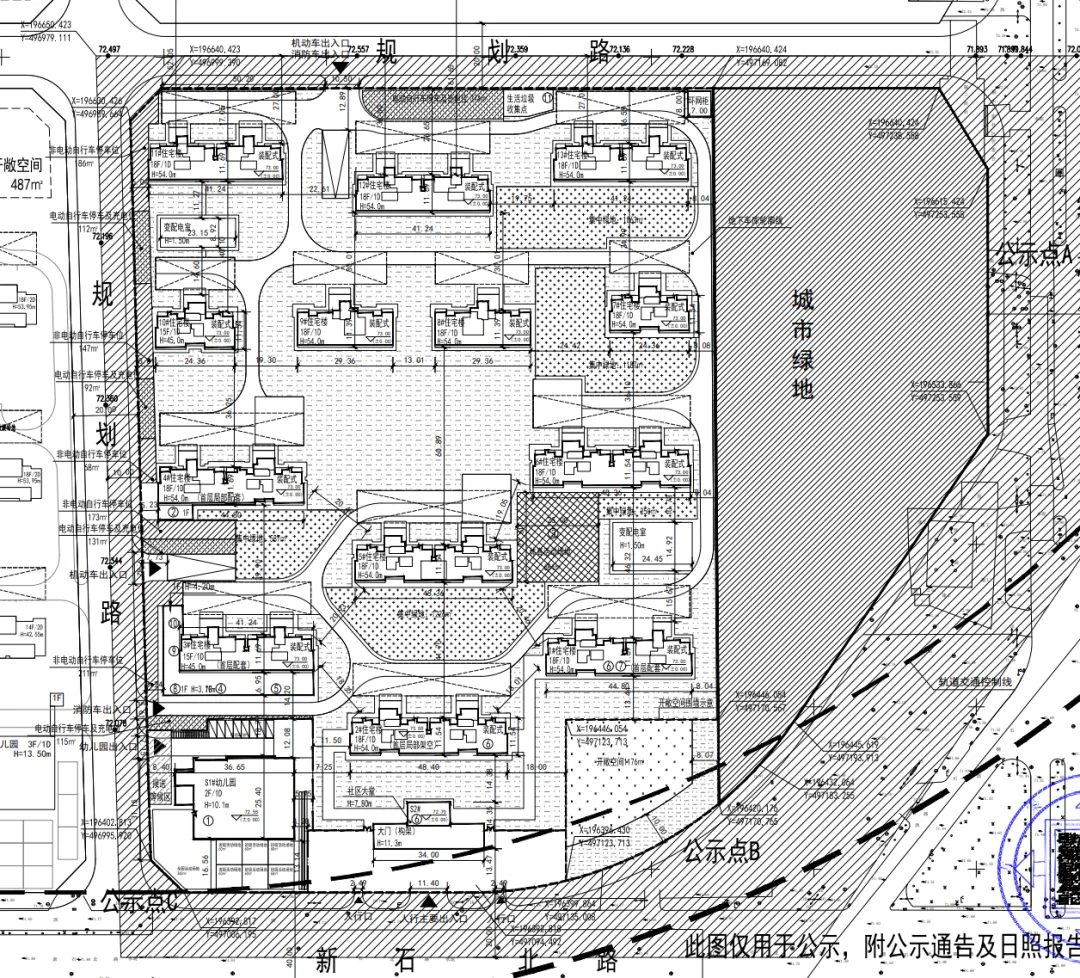
振三街城中村改造项目

✅项目位置:
该项目位于红旗大街以西、新石北路以北。

✅用地性质:
用地性质为城镇住宅用地,属于正常办理,拟建设住宅及配套设施。
✅项目经济技术指标:
项目的主要经济技术指标详见公示的总平面图。


✅意见反馈:
如您对该振三街城中村改造商品地块(R-6)有不同意见或建议,请于公示期内通过书面或电话形式反馈。并提供身份及产权证明文件和联系电话。
有效意见反馈途径为石家庄市自然资源和规划局桥西分局,联系电话83017261、83017229。
西岗头城中村改造项目
✅最新进展:
所有住宅楼室内外装修已至收尾阶段,目前正在加紧进行室外管线铺设和景观绿化工作,项目整体计划于今年建成交付。
✅项目简介:
项目位于桥西区吉恒街以东、西岗头路以南、时光街以西、新石北路以北,总建筑面积约36.1万平方米,绿化面积约3.84万平方米,规划建设26栋住宅楼及幼儿园等配套设施,致力于打造集现代化、多功能性与生态宜居性于一体的城市社区新标杆。
白佛城中村改造项目
该项目室内装修、外立面抹灰等主要工序已基本完成,外墙喷涂、幕墙安装、车库顶板回填、正式电梯安装等关键节点已接近尾声。此外,外线雨污水管道等配套工程也正按计划稳步推进。
▌说明:以上文字及图片信息源自网络,如有侵权请联系我们删除。
