
图源:石家庄市自然资源和规划局,下同
振三街城中改造商品地块(R-6)项目设计方案批前公示
石家庄市自然资源和规划局依石家庄保利和筑房地产开发有限公司关于振三街城中村改造商品地块(R-6)的报建申请,正在审查设计方案。
为广泛听取公众意见,现就该项目设计方案进行批前公示(具体公示地点见图示,相关查询请登录石家庄市自然资源和规划局网站(http://zrghj.sjz.gov.cn)。
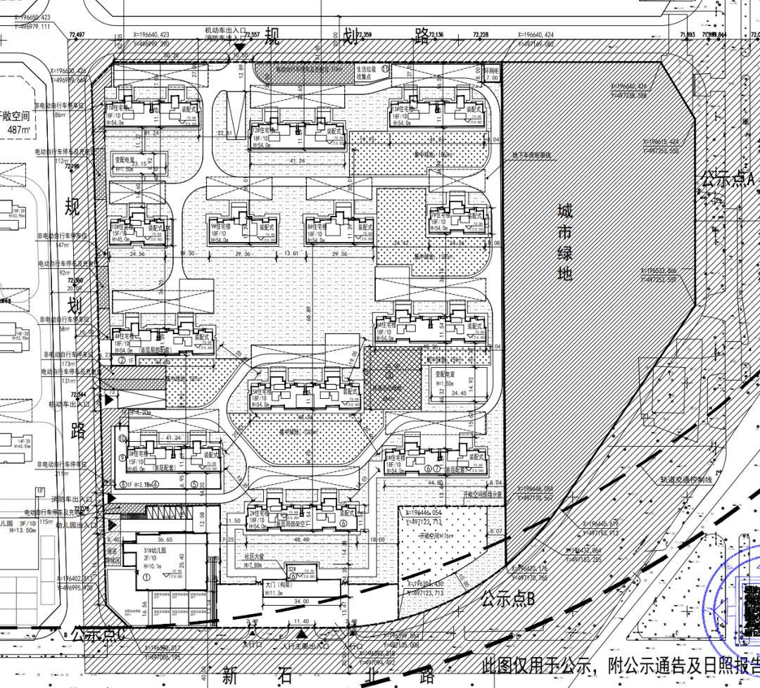
✅项目位置:
该项目位于红旗大街以西、新石北路以北。
✅用地性质:
用地性质为城镇住宅用地,属于正常办理,拟建设住宅及配套设施。
✅项目经济技术指标:
项目的主要经济技术指标详见公示的总平面图。
✅公示期限:
2026年3月5日起,公示期限为10天。
✅意见反馈:
如您对该振三街城中村改造商品地块(R-6)有不同意见或建议,请于公示期内通过书面或电话形式反馈。并提供身份及产权证明文件和联系电话。
有效意见反馈途径为石家庄市自然资源和规划局桥西分局,联系电话83017261、83017229。
源自:石家庄日报、燕赵晚报、无线石家庄、石家庄市自然资源和规划局等